Te Huur 2 Appartement Livingstonelaan In Utrecht
Direct bij eigenaar
Te Huur 2 Appartement Livingstonelaan In Utrecht
Direct bij eigenaar
Te Huur 2 Appartement Livingstonelaan In Utrecht
Direct bij eigenaar
Te Huur 2 Appartement Livingstonelaan In Utrecht
Direct bij eigenaar
Te Huur 2 Appartement Livingstonelaan In Utrecht
€ 820
Utrecht - Livingstonelaan
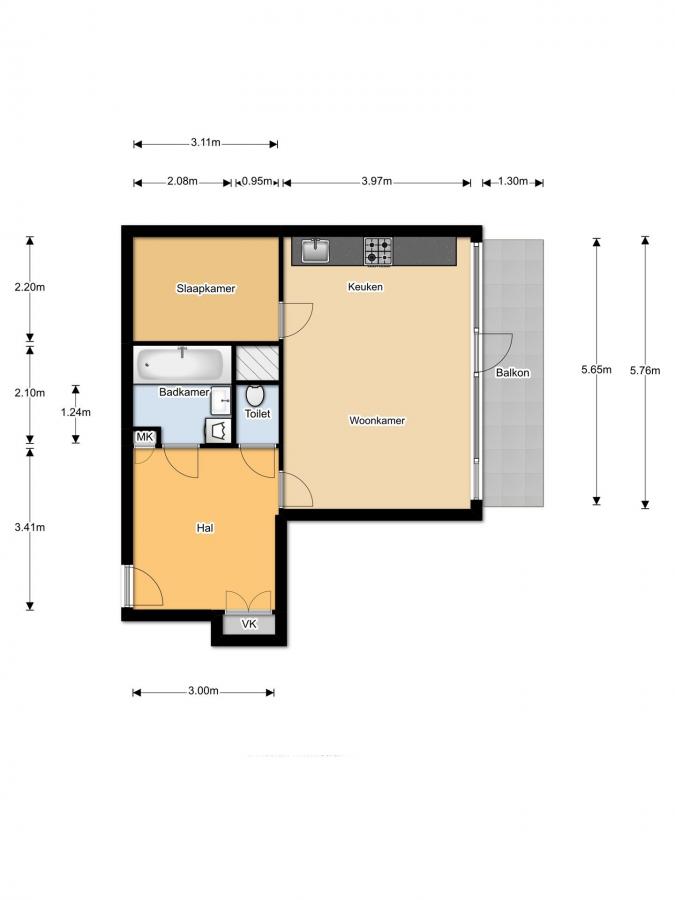
Kamers: 2
Oppervlakte: 44 m²
Type woning: Appartement
Gas/Water/Licht: Exclusief G/W/L
Object: Direct bij de eigenaarHuurtermijn: Onbepaalde termijnOplevering: Zie fotoInkomen eis: NeeGarantiestelling mogelijk: NeeBorg: 1 MaandBemiddeling kosten: NeeWoningdelers toegestaan: NeeHuisdieren toegestaan: Afhankelijk van de EigenaarHuurtoeslag grens: JaGeschikt voor studenten: Afhankelijk van de Eigenaar

Vraag bezichtiging aan